Карта
Блокнот ()
Лот N: 436325
БЕЗ КОМИССИИ
26.03.2025, 10:40 4097

Продажа квартир, ул. Маринковица, кв. Бояна, г. София,
цены от € 524 700

Карта

Локация:  ул. Маринковица

НДС:  цена включает НДС

Вид строительства: кирпич

Стадия строительства: Грубая конструкция

Срок сдачи в эксплуатацию: 06.2026

Отопление: центральная подача газа

Вид остекления: Шест камерна PVC

Зданий: 1

Квартиры: 17

Квартиры студия: 3

Гаражи: 22

Парковочных мест: 4

  • Без отделкой

Без комисиона от купувача!

Продаваме апартаменти в новострояща се сграда на метри от резиденция Бояна, до възловия бул. Ал. Пушкин и с бърз достъп до ул. Околовръстен път. Районът е тих и предлага на обитателите уединение, спокойствие и чист въздух.

Сградата:

Тази бутикова сграда предлага малък брой ексклузивни апартаменти, всеки отличаващ се с функционално и добре обмислено разпределение, което ще донесе максимален комфорт и уют на бъдещите им обитатели.

Архитектурата на сградата залага на прави форми с класически и изчистени детайли по фасадата с елементи от камък и метал, а качеството на влаганите материали ще задоволи и най-взискателните клиенти. Предвидено е осветление по фасадата, красиви елементи по дизайнерски проект от метал на балконите, а на последния етаж терасата ще е със стъклен парапет.

Апартаментите:

  • I-ви етаж: Апартаментите на партерното ниво са тристайни и разполагат със собствен двор от 36.42 кв. м до 39.45 кв. м.
  • II и III етаж: два двустайни, два тристайни южни апартамента и едно многостайно ателие.
  • IV етaж: два двустайни, два тристайни апартамента и един многостаен апартамент.
  • V етаж: два четиристайни апартамента с панорамни гледки.

Технически характеристики:

  • Комбинирана фасада от естествен камък и висок клас минерална мазилка;
  • Общи части с настилки от естествен камък, стени и тавани на латекс;
  • Зидария с тухли Wienerberger с допълнителна шумоизолация;
  • Шумоизолационна подложка по подовете в жилищните помещения;
  • Висок клас асансьор с индивидуален дизайн на кабината;
  • Троен стъклопакет дограма, шест камерен профил;
  • Отопление на ГАЗ с подово отопление;
  • Изводи за климатици;
  • Изводи за СОТ.

Паркиране:

За всички бъдещи собственици са предвидени външни паркоместа на цени от 17500 евро и подземни гаражи на цени от 27500 евро.

За повече информация и оглед, не се колебайте да се свържете с водещия консултант-продажби.

Смотри больше
  • Этот проект - работа признанной и предпочитаемой строительной инвестиционной компании с многолетним опытом и многочисленными зданиями
  • Хорошая инфраструктура в районе - асфальтированные улицы и широкие тротуары
  • Современное видение, роскошное строительство из высококачественных материалов
  • Система контроля доступа
  • Здание будет управляться в соответствии с Законом о этажной собствености
  • Контроль за использованием и поддержанием общих частей и соблюдением внутреннего порядка в здании будет решаться на общем собрании собственников
  • Инвестор организует общего собрания ЭС для выбора органов управления и контроля
  • Сантехника из полипропиленовых труб
  • Канализация из труб PVC с тепло- и шумоизоляцией
  • Водоотведение крыш и террас с помощью бесшовных желобов и водостоков
  • Интернет и ТВ в каждом жылом помещение
  • Система видеодомофона с видео контролем
  • Клеммы для установки кондиционеров
  • Отдельные наземные гаражи
  • Отдельные подземные гаражи
  • Обозначенные наземные автостоянки
  • Обозначенные подземные паркоместа
  • Проходной автолифт без машинного помещения
  • Лифт в здание с выходом из подземного паркинга
  • Металлический забор с декоративными элементами
  • Видеонаблюдение
  • Контроль доступа
  • Благоустройство газонов и декоративных растений
  • Освещение сада
  • Железобетонная безбалочная конструкция
  • Фасад с элементами эталбонд
  • Лифты ORONA
  • Стены - гипсовая штукатурка, полы - стяжка
  • Полы террас и лоджий отделаны гранитной плиткой
  • Эл. установка с установленными выключателями, розетками и квартирной панелью
  • Санинсталяция - водопровод от полипропиленовых труб до пробки, канализация звукопоглощающими трубами PVC
  • Установлены наружные бронированные двери
  • 30% при подписании предварительного договора вычитая залог за бронирование

Подробная информация о предлагаемой недвижимости:

Выберите тип недвижимости: Всего (2) 4-Х КОМН. КВАРТИРА (2)
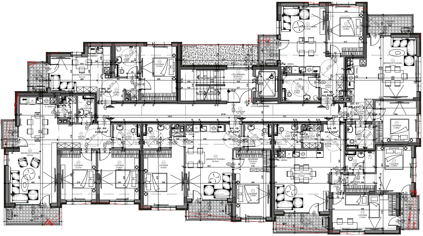
Этаж: 1 План этажа
Квартира Ателие 1, 3-Х КОМН. КВАРТИРА, 117.44 m2, (Пл. застройки 102.27 m2), € 271 300 (€ 2 310/кв.м) ПРОДАН
Квартира 2, 3-Х КОМН. КВАРТИРА, 90.67 m2, (Пл. застройки 78.96 m2), € 219 700 (€ 2 423/кв.м) ПРОДАН
Квартира 3, 3-Х КОМН. КВАРТИРА, 96.89 m2, (Пл. застройки 84.38 m2), € 233 200 (€ 2 407/кв.м) ПРОДАН
Этаж: 4 План этажа
Квартира 21, 2-Х КОМН. КВАРТИРА, 67.13 m2, (Пл. застройки 57.82 m2), € 147 700 (€ 2 200/кв.м) ПРОДАН
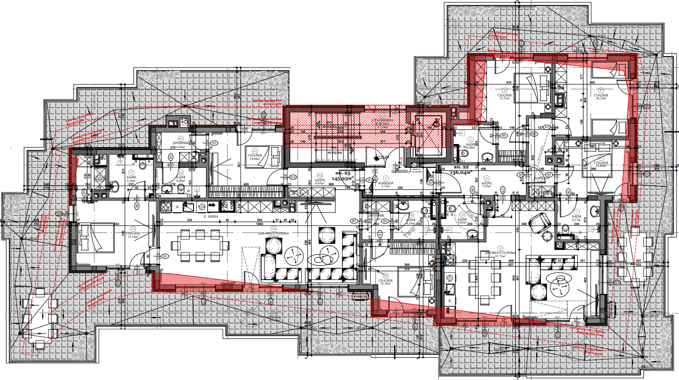
Этаж: 5 План этажа
Квартира 22, 4-Х КОМН. КВАРТИРА, 155.96 m2, (Пл. застройки 136.04 m2), € 524 700 (€ 3 364/кв.м) В ПРОДАЖЕ
Квартира 23, 4-Х КОМН. КВАРТИРА, 167.30 m2, (Пл. застройки 145.93 m2), € 583 300 (€ 3 487/кв.м) В ПРОДАЖЕ
Настоящий перечень с предложениями не исчерпывает полностью Ваши возможности купить недвижимость в этом здании. Имеется возможность приобрести недвижимости, которые пока не объявленные. Пожалуйста, свяжитесь с агентом для контакта.

Пожалуйста, используйте контактную форму для связи с агентом по запросу о дополнительной информации, фотографиях, планов этажей, распределений или проведения осмотра.

ЧТО ВАЖНО ЗНАТЬ, ЕСЛИ ВЫ ХОТИТЕ КУПИТЬ ЭТУ НЕДВИЖИМОСТЬ

1. Многие из предлагаемых нами новостроек без комиссии от покупателя. Обычно это указывается в презентации самого проекта. Тем не менее, спросите вашего контактного агента, если вы должны комиссию на конкретную собственность.

2. Объявленная цена имущества не включает комиссию MIRELA (в зависимости от того, что подлежит уплате) и государственные расходы по сделке (местный налог, нотариальные сборы и пошлина в Агентство по регистрации), в общей сложности около 3,5-4,0 % от стоимости имущества.

За советом о том, как рассчитать расходы, вы можете обратиться к юристу Mirela Ltd. по телефону 02 9812345 с 09.00 до 18.00 по рабочим дням.

3. Мы можем предложить вам аналогичную недвижимость с аналогичными характеристиками в других наших проектах. Также следует учитывать, что мы не всегда отображаем на сайте все свободные и актуальные предложения для конкретного проекта.

4. Вы можете получить бесплатную консультацию по выбору наиболее подходящей недвижимости для вас, связавшись с нашим агентом и договорившись о встрече.

5. Выбрав определенную недвижимость, вы даете гарантию о своем намерении купить ее по определенной цене и в определенные сроки. Если мы не договоримся о той же цене и условиях, мы вернем вашу гарантию.

6. Здесь вы можете увидеть практические советы НАП при аренде, покупке и продаже недвижимости.

Мы работаем открыто и ответственно, с четкими правилами, чтобы предложить вам точный сервис.
Все ваши вопросы могут быть адресованы агенту, ответственному за продажу недвижимости.

Мы будем рады быть нашим клиентом!

КОНТАКТ С АГЕНТОМ ПО ПРОДАЖИ

Пожалуйста, укажите ваши требования, и я пришлю вам соответствующие текущие предложения.

Какую недвижимость вы ищете?
Цена?
Меня интересует:
Мои основные требования:
Имя и фамилия:
Номер телефона:
Электронная почта:
* Расположение объекта на карте может быть неточным.