Map
Scratchpad ()
Offer No. 455582
10/5/25, 6:54 PM 452

Apartments for sale, Gorna banya, Ovcha kupel 1, city of Sofia,
prices from € 124 830

VAT:  price without VAT

Construction type: reinforced concrete structure

Stage of construction: permission for construction granted

Completion date: 11.2027

Heating: Central gas heating

Joinery: PVC

Plot area: 771 sq.m

Building area: 2641 sq.m

Buildings: 1

Apartments: 24

Garages: 5

Parking spaces: 17

  • It is delivered on plaster and putty

Мирела ви представя нова жилищна сграда в кв. Овча купел 1, в близост до ул. Обзор.

Сградата е проектирана е с подземно ниво, партер, четири етажа и подпокривно ниво.
В подземното ниво са реализирани паркоместа.
На партерното ниво има две жилища и 5 гаражни клетки, като едната е двойна.
Останалите етаж съдържат още 22 апартамента, като общо в сградата са 24 жилища.

Възможно е закупуването на паркомясто на цени от 23000 евро без ДДС, гаражи на ниво сутерен на цени то 30000 евро без ДДС и на гаражи на ниво партер на цени от 35000 евро без ДДС.

Всички обявени цени са без ДДС.

За повече информация, не се колебайте да се свържете с водещия консултант-продажби.

See more
  • The design was performed by a renowned architectural studio
  • The building will be managed under the Condominium Act
  • Control over the use and maintenance of the common parts and the observance of the internal order in the building will be decided at the General Assembly of the owners.
  • The investor organizes the convening of a General Meeting of the Owners for election of management and control bodies
  • Plumbing from polypropylene pipes
  • Wiring for kitchen aspiration, individual for each apartment
  • Water meter with remote reading
  • Internet and TV in each living room
  • Video intercom system with video control
  • Terminals for installation of air conditioners
  • Separate above-ground garages
  • Outlined underground parking lots
  • Approach to the underground garages through a ramp
  • Under the underground parking - polished concrete
  • Walls and ceilings underground parking - open concrete
  • Elevator for the building with access from the underground parking
  • Access control
  • Fence by design
  • Access for people with disabilities provided
  • Lobby flooring, corridors and staircase according to a design project
  • Protective stair railings - by design project
  • Landscaping with lawns and ornamental plants
  • Reinforced concrete beamless construction
  • Facade insulation with stone mineral wool
  • Facade with high resistance to weathering and high level of energy efficiency, heat and moisture insulation, fire resistance and durability
  • Walls - gypsum plaster, floors - cement screed
  • Balconies / terraces with applied hydro and steam insulation and installed high quality frost resistant granite
  • Electric installation with installed switches, sockets and apartment panel
  • Mounted exterior armored doors
  • 20% upon signing the preliminary contract and deducting the reservation deposit
  • 30% when Act 14 is signed
  • 30% when Act 15 is signed
  • 10% when Act 16 is signed

Detailed information about the offered properties:

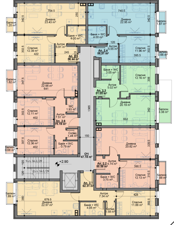
Floor: 2 Floor plan
Apartment 2.1, 1 BR APARTMENT, 71.55 m2, (Built-up area 60.30 m2), € 128 790 (€ 1 800/sq.m) AVAILABLE
Apartment 2.5, 1 BR APARTMENT, 70.02 m2, (Built-up area 58.32 m2), € 126 036 (€ 1 800/sq.m) AVAILABLE
Apartment 2.6, 2 BRS APARTMENT, 89.36 m2, (Built-up area 75.06 m2), € 160 848 (€ 1 800/sq.m) AVAILABLE
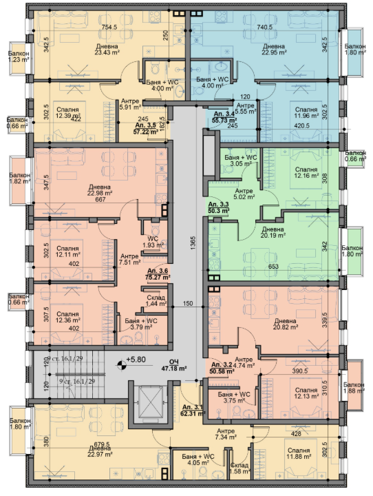
Floor: 3 Floor plan
Apartment 3.1, 1 BR APARTMENT, 72.01 m2, (Built-up area 60.29 m2), € 129 618 (€ 1 800/sq.m) AVAILABLE
Apartment 3.4, 1 BR APARTMENT, 69.35 m2, (Built-up area 55.47 m2), € 124 830 (€ 1 800/sq.m) AVAILABLE
Apartment 3.5, 1 BR APARTMENT, 70.31 m2, (Built-up area 59.06 m2), € 126 558 (€ 1 800/sq.m) AVAILABLE
Apartment 3.6, 2 BRS APARTMENT, 89.36 m2, (Built-up area 75.06 m2), € 160 848 (€ 1 800/sq.m) AVAILABLE
Floor: 4 Floor plan
Apartment 4.1, 1 BR APARTMENT, 72.74 m2, (Built-up area 60.90 m2), € 130 932 (€ 1 800/sq.m) AVAILABLE
Apartment 4.2, 2 BRS APARTMENT, 87.85 m2, (Built-up area 73.31 m2), € 158 130 (€ 1 800/sq.m) AVAILABLE
Apartment 4.3, 2 BRS APARTMENT, 99.22 m2, (Built-up area 82.80 m2), € 178 596 (€ 1 800/sq.m) AVAILABLE
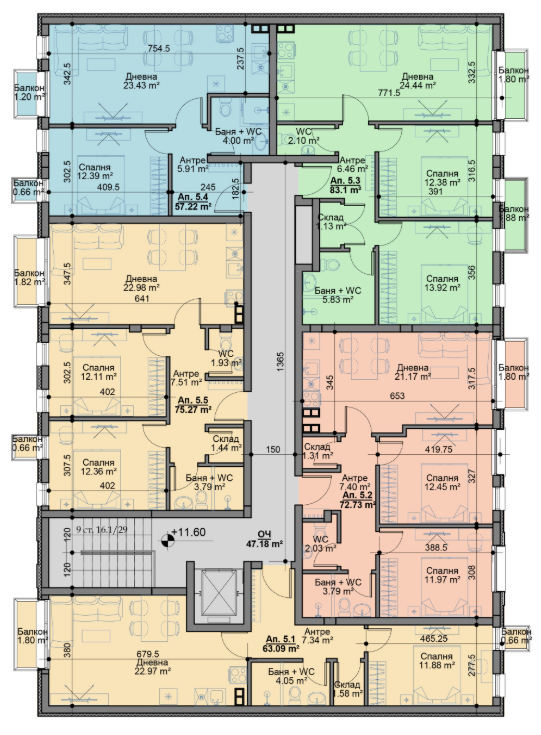
Floor: 5 Floor plan
Apartment 5.1, 1 BR APARTMENT, 99.22 m2, (Built-up area 82.80 m2), € 173 496 (€ 1 749/sq.m) AVAILABLE
Apartment 5.3, 2 BRS APARTMENT, 98.18 m2, (Built-up area 82.73 m2), € 235 632 (€ 2 400/sq.m) AVAILABLE
Apartment 5.4, 1 BR APARTMENT, 69.60 m2, (Built-up area 59.01 m2), € 167 040 (€ 2 400/sq.m) AVAILABLE
The list of submitted offers does not exhaust the full potential to buy a property in this building. There may be a property that has not yet been announced. Please contact the agent for contacts.

Please use the contact form to get in touch with the agent in case you are interested in additional information, pictures, floor plans and arranging a property viewing.

Here's what's important if you wish to purchase this property

1. A large part of the newly built apartments are being offered without commission for buyers. This is usually indicated in the presentation of the project itself. You should still ask your agent whether you own commission on specific properties.

2. The declared price of the property does not include the commission of MIRELA (whenever such is due) and the state costs of the transaction (local tax, notarial fees and the fee to the Registry Agency, which (tax and fees) are totaling about 3,5 - 4,0% of the total value of the property.
For advice on how to calculate transaction costs, you can contact a lawyer at Mirela Ltd.
on 02 9812345 from 09.00 to 18.00 on weekdays.

3. We can offer you a property with similar characteristics in one of our other projects.
You should also bear in mind that we do not always display on our website all free and current independent properties in the specific project.

4. You can get a free consultation on choosing the most suitable property for you by contacting our agent and arranging an appointment.

5. After choosing a particular property, you provide a guarantee of your intentions to buy it at a certain price and terms. If we do not negotiate the same price and terms, we will refund your guarantee.

6. Here you can see the practical advice of the NRA on renting, buying and selling real estate.

We work openly and responsibly, with clear rules, to offer you accurate service.
All your questions can be addressed to the agent responsible for the offering and sale of this property.

We will be happy to have you as our client!

CONTACT THE SALES AGENT

Please, specify your requirements and we will send you the suitable offers.

What type of property are you looking for?
Price?
I am interested in:
My main requirements are:
Name and surname:
Phone number:
Email:
* Marked location on the map may not be exactly.