Map
Scratchpad ()
Offer No. 438843
NO COMMISSION
8/21/25, 3:40 PM 4872

Apartments for sale, Dr Atanas Moskov St, Mladost 4, city of Sofia,
prices from € 266 473

Map

Location:   Dr Atanas Moskov St

VAT:  price VAT included

Construction type: reinforced concrete structure with hanging facade and brickwork

Stage of construction: Rough construction

Completion date: 12.2025

Heating: Central heating

Joinery: Six-chamber PVC

Plot area: 2676 sq.m

Building area: 16689 sq.m

Buildings: 1

Sections: 3

Apartments: 107

Garages: 21

Parking spaces: 98

Shops: 2

  • It is delivered on plaster and putty

Без комисиона от купувача!

Мирела представя Premium Mladost Residence - нова жилищна сграда, разположен в един от най-динамично развиващите се райони на града - ж.к. Младост 4.

Местоположението е изключително комуникативно и удобно - в подножието на Витоша, от изток на Бизнес парк, като в непосредствена близост се намират ИКЕА, София Ринг Мол и други големи вериги магазини. Достъпът до центъра и кварталите е бърз - по ул. Проф. Александър Танев и по ул. Околовръстен път.

Строително-инвестиционната компания е с дългогодишен професионален опит. Строежът се изпълнява в указаните срокове според всички европейски изисквания.

Premium Mladost Residence се състои от 3 секции с две подземни нива, партер и девет етажа с апартаменти. Отличава се с модерна и представителна фасада с високоефективна топлоизолация. Общите части ще са луксозно изпълнени. При проектирането на жилищата е наблегнато на удобството като са предвидени просторни стаи, правилни форми и достатъчен брой санитарни възли. Всеки апартамент разполага още с балкон или тераса.

При желание, инвеститорът предлага комплексна услуга за обитателите, съчетаваща всички фази на проектиране, продуктов дизайн и реализация.

Възможно е закупуването на гараж или паркомясто на партера или двете сутеренни нива, където се разположени също складови помещения и паркоместа за мотопеди.

За повече информация, огледи и среща с инвеститора, не се колебайте да се свържете с водещия консултант-продажби.

Може да видите още свободни обекти в сградата тук!

See more
  • The project is the work of an established and preferred construction investment company with many years of experience and numerous buildings.
  • 24 hour video surveillance
  • Good infrastructure in the area - paved streets and wide sidewalks
  • Modern vision, luxury construction with high quality materials
  • Panoramic view of the mountain / city from higher floors
  • Construction company with extensive experience and excellent reputation
  • The building will be managed under the Condominium Act
  • Control over the use and maintenance of the common parts and the observance of the internal order in the building will be decided at the General Assembly of the owners.
  • The investor organizes the convening of a General Meeting of the Owners for election of management and control bodies
  • Plumbing from polypropylene pipes
  • Sewerage from PVC pipes with heat and noise insulation
  • Water meter with remote reading
  • Internet and TV in each living room
  • Video intercom system with video control
  • Terminals for installation of air conditioners
  • Separate above-ground garages
  • Outlined underground parking lots
  • Approach to the underground garages through a ramp
  • Elevator for the building with access from the underground parking
  • Access control
  • Landscaping with lawns and ornamental plants
  • Garden lighting
  • Wienerberger bricks
  • Walls - gypsum plaster, floors - cement screed
  • Mounted exterior armored doors
  • €2000 reservation deposit
  • 20% upon signing the preliminary contract and deducting the reservation deposit
  • 40% when Act 14 is signed
  • 30% when Act 15 is signed
  • 10% when Act 16 is signed

Detailed information about the offered properties:

Entrance: А
Floor: 2 Floor plan
Apartment А3, 2 BRS APARTMENT, Entrance А, 134.87 m2, (Built-up area 109.15 m2), € 263 997 (€ 1 957/sq.m) SOLD
Apartment А4, 2 BRS APARTMENT, Entrance А, 136.14 m2, (Built-up area 109.75 m2), € 266 473 (€ 1 957/sq.m) AVAILABLE
Apartment А7, 2 BRS APARTMENT, Entrance А, 142.31 m2, (Built-up area 116.04 m2), € 278 505 (€ 1 957/sq.m) AVAILABLE
Apartment А5, 1 BR APARTMENT, Entrance А, 92.64 m2, (Built-up area 75.40 m2), € 165 899 (€ 1 791/sq.m) SOLD
Floor: 3 Floor plan
Apartment А8, 2 BRS APARTMENT, Entrance А, 132.72 m2, (Built-up area 106.56 m2), € 251 841 (€ 1 898/sq.m) SOLD
Floor: 4 Floor plan
Apartment А14, 3 BRS APARTMENT, Entrance А, 142.75 m2, (Built-up area 114.17 m2), € 283 645 (€ 1 987/sq.m) SOLD
Apartment А17, 2 BRS APARTMENT, Entrance А, 143.40 m2, (Built-up area 116.04 m2), € 284 932 (€ 1 987/sq.m) AVAILABLE
Floor: 5 Floor plan
Apartment А18, 2 BRS APARTMENT, Entrance А, 132.72 m2, (Built-up area 106.56 m2), € 241 223 (€ 1 818/sq.m) SOLD
Apartment А22, 2 BRS APARTMENT, Entrance А, 143.40 m2, (Built-up area 116.04 m2), € 286 366 (€ 1 997/sq.m) AVAILABLE
Floor: 6 Floor plan
Apartment А27, 2 BRS APARTMENT, Entrance А, 143.40 m2, (Built-up area 116.04 m2), € 289 234 (€ 2 017/sq.m) AVAILABLE
Floor: 7 Floor plan
Apartment А28, 2 BRS APARTMENT, Entrance А, 132.72 m2, (Built-up area 106.56 m2), € 270 422 (€ 2 038/sq.m) SOLD
Apartment A30, 1 BR APARTMENT, Entrance А, 93.33 m2, (Built-up area 75.38 m2), € 173 661 (€ 1 861/sq.m) SOLD
Floor: 8 Floor plan
Apartment А37, 2 BRS APARTMENT, Entrance А, 120.09 m2, (Built-up area 97.18 m2), € 231 367 (€ 1 927/sq.m) SOLD
Apartment А33, 2 BRS APARTMENT, Entrance А, 97.52 m2, (Built-up area 78.30 m2), € 223 261 (€ 2 289/sq.m) SOLD
Floor: 9 Floor plan
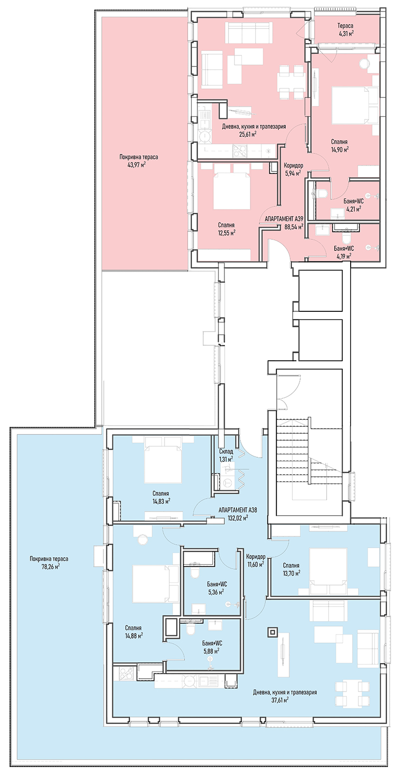
Apartment А39, 2 BRS APARTMENT, Entrance А, 109.42 m2, (Built-up area 88.54 m2), € 248 390 (€ 2 270/sq.m) SOLD
Entrance: Б
Floor: 2 Floor plan
Apartment Б5, 1 BR APARTMENT, Entrance Б, 90.68 m2, (Built-up area 72.97 m2), € 162 410 (€ 1 791/sq.m) SOLD
Apartment Б6, 2 BRS APARTMENT, Entrance Б, 124.64 m2, (Built-up area 101.06 m2), € 248 054 (€ 1 990/sq.m) SOLD
Floor: 4 Floor plan
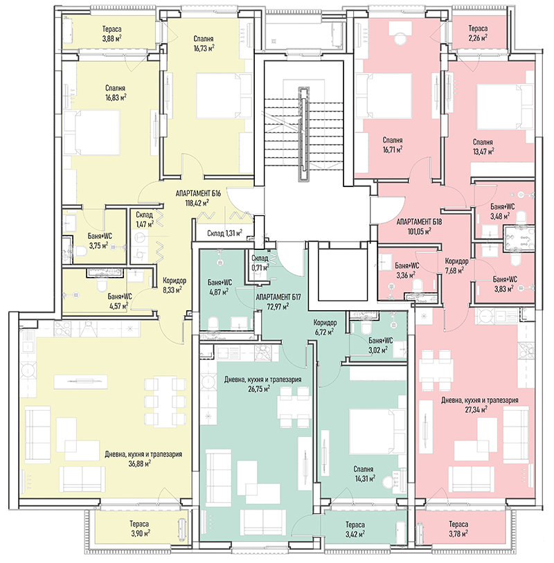
Apartment Б10, 2 BRS APARTMENT, Entrance Б, 147.21 m2, (Built-up area 118.42 m2), € 280 699 (€ 1 907/sq.m) SOLD
Floor: 5 Floor plan
Apartment Б15, 2 BRS APARTMENT, Entrance Б, 125.62 m2, (Built-up area 101.05 m2), € 232 562 (€ 1 851/sq.m) SOLD
Floor: 6 Floor plan
Apartment Б18, 2 BRS APARTMENT, Entrance Б, 125.62 m2, (Built-up area 101.05 m2), € 235 095 (€ 1 871/sq.m) SOLD
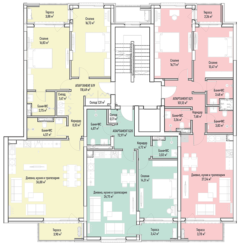
Apartment Б16, 2 BRS APARTMENT, Entrance Б, 147.21 m2, (Built-up area 118.42 m2), € 296 892 (€ 2 017/sq.m) AVAILABLE
Floor: 7 Floor plan
Apartment Б19, 2 BRS APARTMENT, Entrance Б, 147.21 m2, (Built-up area 118.42 m2), € 300 019 (€ 2 038/sq.m) AVAILABLE
Floor: 8 Floor plan
Apartment Б22, 2 BRS APARTMENT, Entrance Б, 147.22 m2, (Built-up area 118.43 m2), € 302 801 (€ 2 057/sq.m) AVAILABLE
Floor: 9 Floor plan
Apartment Б27, 2 BRS APARTMENT, Entrance Б, 125.62 m2, (Built-up area 101.05 m2), € 264 117 (€ 2 103/sq.m) SOLD
Floor: 10 Floor plan
Apartment Б28, 3 BRS APARTMENT, Entrance Б, 151.76 m2, (Built-up area 122.56 m2), € 363 002 (€ 2 392/sq.m) AVAILABLE
Entrance: В
Floor: 2 Floor plan
Apartment В04, 2 BRS APARTMENT, Entrance В, 147.68 m2, (Built-up area 116.37 m2), € 288 976 (€ 1 957/sq.m) AVAILABLE
Floor: 3 Floor plan
Apartment В09, 2 BRS APARTMENT, Entrance В, 149.01 m2, (Built-up area 116.39 m2), € 293 060 (€ 1 967/sq.m) AVAILABLE
Floor: 5 Floor plan
Apartment В19, 2 BRS APARTMENT, Entrance В, 149.01 m2, (Built-up area 116.39 m2), € 297 530 (€ 1 997/sq.m) AVAILABLE
Floor: 6 Floor plan
Apartment В24, 2 BRS APARTMENT, Entrance В, 149.01 m2, (Built-up area 116.39 m2), € 300 510 (€ 2 017/sq.m) AVAILABLE
Floor: 7 Floor plan
Apartment В29, 2 BRS APARTMENT, Entrance В, 149.01 m2, (Built-up area 116.39 m2), € 303 490 (€ 2 037/sq.m) AVAILABLE
Floor: 8 Floor plan
Apartment В34, 2 BRS APARTMENT, Entrance В, 127.89 m2, (Built-up area 99.90 m2), € 270 365 (€ 2 114/sq.m) AVAILABLE
Apartment В36, 2 BRS APARTMENT, Entrance В, 121.78 m2, (Built-up area 96.14 m2), € 281 779 (€ 2 314/sq.m) AVAILABLE
Apartment В35, 1 BR APARTMENT, Entrance В, 87.71 m2, (Built-up area 69.25 m2), € 197 661 (€ 2 254/sq.m) SOLD
Floor: 9 Floor plan
Apartment В37, 2 BRS APARTMENT, Entrance В, 149.53 m2, (Built-up area 117.26 m2), € 330 772 (€ 2 212/sq.m) AVAILABLE
Apartment В38, 2 BRS APARTMENT, Entrance В, 119.74 m2, (Built-up area 94.74 m2), € 282 664 (€ 2 361/sq.m) SOLD
Floor: 10 Floor plan
Apartment В39, 2 BRS APARTMENT, Entrance В, 122.13 m2, (Built-up area 96.43 m2), € 303 809 (€ 2 488/sq.m) AVAILABLE
The list of submitted offers does not exhaust the full potential to buy a property in this building. There may be a property that has not yet been announced. Please contact the agent for contacts.

Please use the contact form to get in touch with the agent in case you are interested in additional information, pictures, floor plans and arranging a property viewing.

Here's what's important if you wish to purchase this property

1. A large part of the newly built apartments are being offered without commission for buyers. This is usually indicated in the presentation of the project itself. You should still ask your agent whether you own commission on specific properties.

2. The declared price of the property does not include the commission of MIRELA (whenever such is due) and the state costs of the transaction (local tax, notarial fees and the fee to the Registry Agency, which (tax and fees) are totaling about 3,5 - 4,0% of the total value of the property.
For advice on how to calculate transaction costs, you can contact a lawyer at Mirela Ltd.
on 02 9812345 from 09.00 to 18.00 on weekdays.

3. We can offer you a property with similar characteristics in one of our other projects.
You should also bear in mind that we do not always display on our website all free and current independent properties in the specific project.

4. You can get a free consultation on choosing the most suitable property for you by contacting our agent and arranging an appointment.

5. After choosing a particular property, you provide a guarantee of your intentions to buy it at a certain price and terms. If we do not negotiate the same price and terms, we will refund your guarantee.

6. Here you can see the practical advice of the NRA on renting, buying and selling real estate.

We work openly and responsibly, with clear rules, to offer you accurate service.
All your questions can be addressed to the agent responsible for the offering and sale of this property.

We will be happy to have you as our client!

Phone: 0883943146
CONTACT THE SALES AGENT

Please, specify your requirements and we will send you the suitable offers.

What type of property are you looking for?
Price?
I am interested in:
My main requirements are:
Name and surname:
Phone number:
Email:
* Marked location on the map may not be exactly.