Map
Scratchpad ()
Offer No. 437592
1/14/25, 9:35 PM 1818

House, Bratislava St, Chernomorets, 249.52 sq.m,
€ 450 000
(

£ 1 595 / $ 2 101 / € 1 803 sq. m

)

Map

Location:   Bratislava St

Distance: beach - 200 m, grocery store - 50 m, Burgas town - 25 km

VAT:  price without VAT

Total size:  249.52 sq.m

Built-up area:  249.52 sq.m

Yard area:  231.1 sq.m

Floors: 3

Bedrooms: 3

Bathrooms: 4

Stage of construction: construction completed including all installation

Completion date: 06.2025

Joinery: Aluminium casement windows - luxury

Heating: air conditioner

Characteristics: 
  • Distant sea view
  • There is an above-ground parking space
  • Unfurnished for sale
  • It is delivered on plaster and putty
  • The area has central sewerage
  • Year-round use

Предлагам за продажба модерна триетажна къща с невероятна гледка към красивия морски залив и остров „Свети Иван“, прецизно разположена на 200 метра от плажа на Еко къмпинг "Черноморец" в иновативен проект от къщи в гр. Черноморец.

Къща номер 11 с РЗП 249,52 кв.м. е ситуирана с втора идентична в общ двор 490.40 кв.м., който може да бъде декоративно разделен. Частта от двора за къща 11 е с площ 231,10 кв.м.

Разпределението включва:

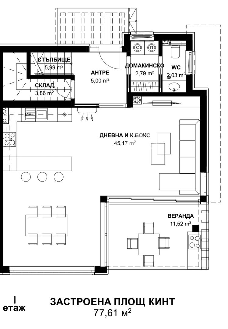
  • Първи етаж с площ 77,61 кв.м. – антре, мокро помещение, тоалетна, просторна дневна 45,17 кв.м., кухня, веранда 11,52 кв.м., от която се излиза към вътрешен двор.
  • Втори етаж с площ 90,25 кв.м. – две самостоятелни спални, всяка със собствена баня с тоалетна, панорамна тераса.
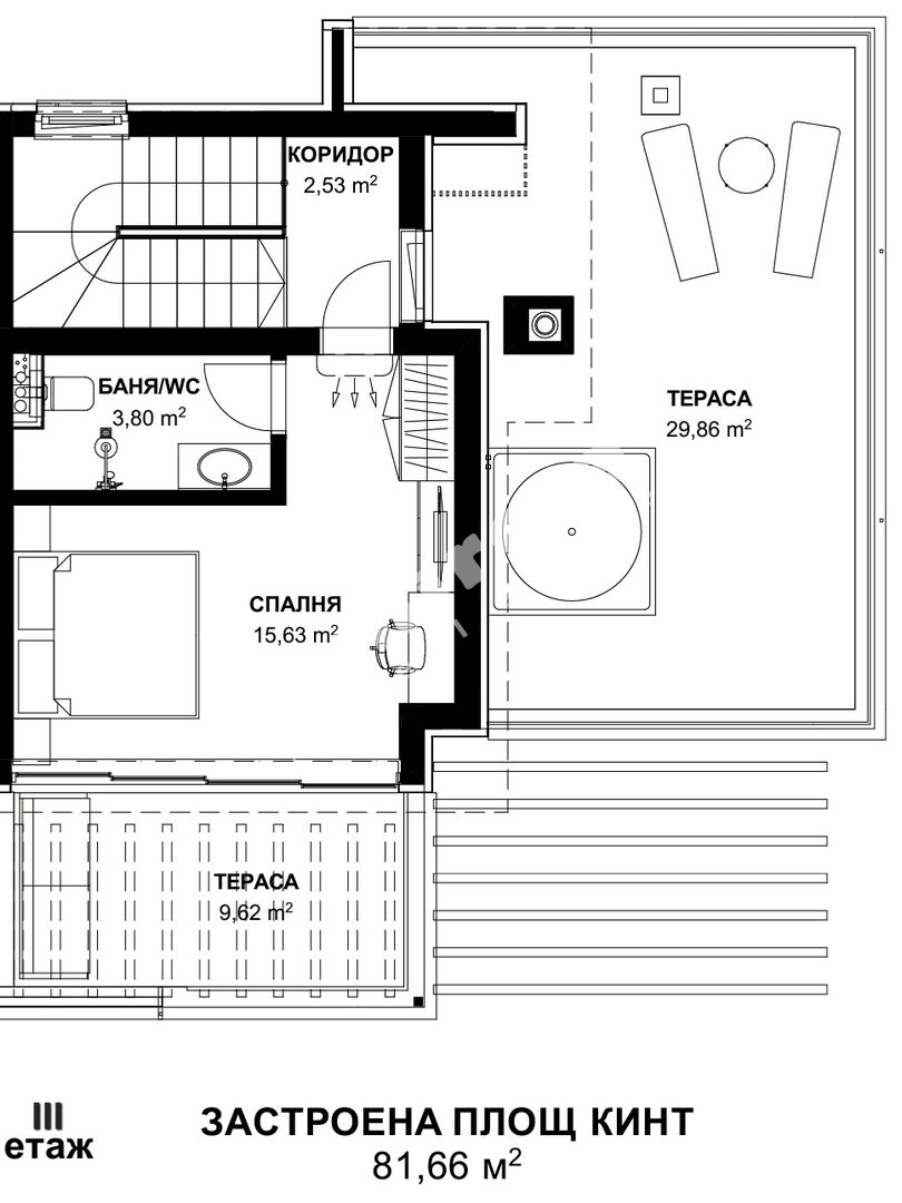
  • Трети етаж с площ 81,61 кв.м. – една спалня, баня с тоалетна, тераса пред спалнята и втора просторна тераса 29,86 кв.м.
  • Предвидено е едно паркомясто.

Къщата се продава в настоящия етап на строеж. При желание на клиента, се предлагат довършителни работи и обзавеждане на къщата.

Сградите в комплекса са проектирани с максимална професионална гъвкавост, която да отговаря индивидуално на желанията и комфорта на клиентите. Проектът включва стилна и прецизно планирана вътрешна инфраструктура, нова централна канализация, собствено паркомясто за всяка къща, оптичен бърз интернет, видеонаблюдение, надеждно електричество, самостоятелен двор и достъп, богата зеленина в околността.

На разположение съм за организиране на оглед и предоставяне на допълнителна информация за имота.

See more

WHAT IS IMPORTANT TO KNOW IF YOU WANT TO PURCHASE THAT PROPERTY

1. The listed price does not include the commission remuneration of Mirela and the state costs for the transaction (local tax, notary fee and taxes to Registry Agency, which ( tax and fees) amount to about 3% of property value.

2. Our usual remuneration, which you owe when you purchase property is 3 % (excluding VAT) of the property sale price, not less than EUR 2,000 (excluding VAT). This commission does not apply to holiday homes and rural properties. For some properties the commission is subject to explicit agreement. We advise you to ask your agent in advance for the particular property you are interested in.

For consultation on calculating transaction costs, you can contact a lawyer of Mirela LTD at +359 883 940 027 from 09:00 to 18:00 on work days.

3. In order to organize a property viewing you should conclude an Assignation order with Mirela. You can submit that order and online.

4. There is a possibility this property to be with No commission for the buyer or to have other preferential conditions for payment of the remuneration - ask the agent of the offer.

5. Under the conditions of the concluded Assignation order you are entitled of additional discounts.

6. The remuneration shall be paid within 5 days after the implementation of the transaction. This payment can be in the means of bank transfer to Mirela's bank account.

7. You owe a remuneration only if you purchase that property - you do not owe anything in advance.

8. You can give a guarantee of your intention to purchase the property and to place in advance the conditions under which You will make a deal. If we do not manage to negotiate the same conditions, we will refund the guarantee.

9. The negotiations on the deal are made, through the mediation of Mirela. The draw up of documents for the transaction is carried out by Mirela, unless you are willing to use your own solicitors.

10. You can sign a preliminary contract for purchase- sale of the property, leaving the seller a DOWN PAYMENT or go directly to signing the final contract (notary deed) - we will offer You options and our opinion on this issue, but the decision is yours and we comply with it.

11. If after a concluded with our mediation purchase-sale contract, a final contract for purchase sale is not concluded through the Seller's fault, MIRELA obliges to search another property, as You do not owe an additional remuneration for following implemented deal.

12. To avoid misunderstandings, you will be notified by e-mail and SMS through all stages of the transaction.

13. You have a guaranteed possibility to share your impressions of the service and to level criticism or recommendation directly to the management of Mirela.14. For deals worth over 10 000 BGN, it's obligatory the provision of guarantee and payment of amounts of the sale price of the property to be made in the means of bank transfer.

We work in an open, accountable way, with clear rules.

Do not hesitate to send all your questions to the agent who is in charge with the offering of the property.

We will be glad to have You as our client!

Price change notification
In case of price change of the property You will receive a message to Your email:
I offer another price
I would buy this property at the price of:
Property Administrator
Phone: 0883941440
Tell me more about this property: 
Location
Similar properties
Last sold in the area
* Marked location on the map may not be exactly.
Last sold in the area
SOLD
9

 

House Burgas Region, Sozopol, Via Pontika St
190 sq. m € 330 000