Map
Scratchpad ()
Offer No. 457457
NO COMMISSION
11/21/25, 11:56 AM 122

2-bedroom apartment, Lyulin 8, city of Sofia, 109.98 sq.m,
€ 225 459
(

£ 1 782 / $ 2 438 / € 2 050 sq. m

)

VAT:  price VAT included

Apartment: 29

Total size:  109.98 sq.m

Built-up area::  94.91 sq.m

Floor: 4

Floors: 9

Bedrooms: 2

Bathrooms: 2

Construction type: brick

Stage of construction:  permission for construction granted

Completion date:  12.2028

Exposure: south

Joinery: Six-chamber PVC

Characteristics: 
  • There is 1 balcony / terrace
  • Non-transition

ДОКАЗАН ИНВЕСТИТОР! БЕЗ КОМИСИОНА! БЕЗ ИНДЕКСАЦИЯ НА ЦЕНАТА! ПРОДАЖБИ МИРЕЛА!

Представяме ви 3-стаен апартамент в нова жилищна сграда в ж.к. Люлин 8, на 550 метра от метростанция Сливница и 650 метра от метростанция Люлин. В близост се намират детски градини, училище, множество магазини и спирки на градския транспорт.

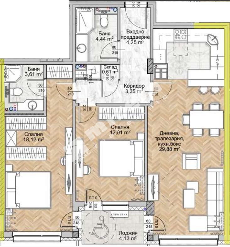
Апартаментът, който презентираме с тази оферта, е със следното разпределение: антре, дневна с трапезария и кухненски бокс, две спални, две бани с тоалетна, склад и лоджия.

Предлагаме в тази сграда общо 59 бр. двустайни, тристайни, четиристайни апартаменти и ателиета.

Проектът е с подземно ниво (на което са разположени гаражи, паркоместа и мазета) партерен и осем надземни етажа. На партерния етаж са обособени 10 апартамента, както и открити паркоместа във вътрешното дворно пространство. На следващите жилищни етажи са проектирани 2-стайни, 3-стайни и 4-стайни апартаменти.

Възможно е закупуването на гаражи на цени от 31000 евро и на паркоместа на цени започващи от 18500 евро.

Всички обявени цени са с вкл. ДДС и не подлежат на индексации.

See more
See the project

WHAT IS IMPORTANT TO KNOW IF YOU WANT TO PURCHASE THAT PROPERTY

1. The listed price does not include the commission remuneration of Mirela and the state costs for the transaction (local tax, notary fee and taxes to Registry Agency, which ( tax and fees) amount to about 3% of property value.

2. Our usual remuneration, which you owe when you purchase property is 3 % (excluding VAT) of the property sale price, not less than EUR 2,000 (excluding VAT). This commission does not apply to holiday homes and rural properties. For some properties the commission is subject to explicit agreement. We advise you to ask your agent in advance for the particular property you are interested in.

For consultation on calculating transaction costs, you can contact a lawyer of Mirela LTD at +359 883 940 027 from 09:00 to 18:00 on work days.

3. In order to organize a property viewing you should conclude an Assignation order with Mirela. You can submit that order and online.

4. There is a possibility this property to be with No commission for the buyer or to have other preferential conditions for payment of the remuneration - ask the agent of the offer.

5. Under the conditions of the concluded Assignation order you are entitled of additional discounts.

6. The remuneration shall be paid within 5 days after the implementation of the transaction. This payment can be in the means of bank transfer to Mirela's bank account.

7. You owe a remuneration only if you purchase that property - you do not owe anything in advance.

8. You can give a guarantee of your intention to purchase the property and to place in advance the conditions under which You will make a deal. If we do not manage to negotiate the same conditions, we will refund the guarantee.

9. The negotiations on the deal are made, through the mediation of Mirela. The draw up of documents for the transaction is carried out by Mirela, unless you are willing to use your own solicitors.

10. You can sign a preliminary contract for purchase- sale of the property, leaving the seller a DOWN PAYMENT or go directly to signing the final contract (notary deed) - we will offer You options and our opinion on this issue, but the decision is yours and we comply with it.

11. If after a concluded with our mediation purchase-sale contract, a final contract for purchase sale is not concluded through the Seller's fault, MIRELA obliges to search another property, as You do not owe an additional remuneration for following implemented deal.

12. To avoid misunderstandings, you will be notified by e-mail and SMS through all stages of the transaction.

13. You have a guaranteed possibility to share your impressions of the service and to level criticism or recommendation directly to the management of Mirela.

14. For deals worth over 5112 euro, it's obligatory the provision of guarantee and payment of amounts of the sale price of the property to be made in the means of bank transfer.

We work in an open, accountable way, with clear rules.

Do not hesitate to send all your questions to the agent who is in charge with the offering of the property.

We will be glad to have You as our client!

Price change notification
In case of price change of the property You will receive a message to Your email:
I offer another price
I would buy this property at the price of:
Phone: 0883942636
Tell me more about this property: 
Location
Similar properties
Last sold in the area
* Marked location on the map may not be exactly.
Last sold in the area
SOLD
2

 

2-bedroom apartment city of Sofia, Lyulin 5
125.49 sq. m € 230 098
SOLD
2

 

2-bedroom apartment city of Sofia, Lyulin 2
113.58 sq. m € 196 090
SOLD
1

 

2-bedroom apartment city of Sofia, Lyulin 6, Dr Petar Dertliev Blvd
108.96 sq. m € 173 840
SOLD
17

 

2-bedroom apartment city of Sofia, Lyulin 9, St Balaton
129 sq. m € 239 000
SOLD

 

2-bedroom apartment city of Sofia, Lyulin 5, Dr Petar Dertliev Blvd
101.47 sq. m € 167 425