Map
Scratchpad ()
Offer No. 456935
2/24/26, 12:43 PM 416

Apartments for sale/ Sea apartments for sale, Alen mak, city of Varna,
prices from € 108 930

Main features

VAT:  price VAT included

Construction type: brick

Stage of construction: approved design

Completion date: 05.2028

Heating: air conditioner

Joinery: PVC 7-chamber casement windows

Plot area: 978 sq.m

Building area: 1928 sq.m

Buildings: 1

Apartments: 15

Parking spaces: 15

  • Distant sea view
  • It is delivered on plaster and putty
  • There is NO charge

Започваме предварителни продажби на апартаменти в нов жилищен проект във в. з. Ален Мак, гр. Варна. Предлагаме възможност за избор на двустайни и тристайни апартаменти от 2-ри до 6-ти етаж, с различни изложения и добре оптимизирани вътрешни разпределения.

  • Промоционални цени до разрешение за строителство!
  • Гъвкави схеми на плащане!

Сега е моментът да резервирате вашия имот с предоставяне на депозит.

Представяме Ви шестетажна жилищна сграда, разположена в престижната местност Ален Мак - само на метри от Варненския свободен университет, спирки на градския транспорт и на минути от плаж Кабакум.
Сградата предлага отлична комбинация от комфортен градски живот, стил, простор, природа и практични жилищни решения, подходящи както за постоянно обитаване, така и за инвестиция.

Акценти на проекта:

  • Двустайни и тристайни апартаменти с правилни форми, без скосове и отстъпи
  • Само един уникален четиристаен апартамент – идеален за по-голямо семейство
  • Просторни помещения, обособени килерни и гардеробни помещения
  • Гледка към зеленина и морето
  • Висококачествени материали и модерна архитектура
    Построена по система Baumit, с тухли Wienerberger

    Общи части и удобства:
  • Озеленен двор с беседка и барбекю зона – място за почивка и събирания
  • Контролиран достъп до сградата
  • Достъпна среда за хора с увреждания – асансьор и тераси пригодени за инвалидни колички
  • Открити паркоместа с удобен и лесен достъп

    Локация: На метри от спирка на градски транспорт, 50 м от денонощен магазин, близо до Варненски свободен университет, лесен достъп до централната част на Варна и морския бряг, спокойна и зелена зона.

    Защо да купите в тази сграда?
    ✔ Просторни и функционални апартаменти
    ✔ Сигурна инвестиция в район с търсене
    ✔ Подходяща за целогодишно живеене
    ✔ Спокойствие, природа и отлична локация в едно

За повече информация се свържете с нас!

See more
  • The design was performed by a renowned architectural studio
  • Innovative energy solutions for maximum savings
  • Landscaped courtyard
  • Good infrastructure in the area - paved streets and wide sidewalks
  • Affordable prices
  • Dwellings with functional distribution and optimal use of interior space
  • Modern vision, luxury construction with high quality materials
  • Modern, impressive facade
  • The building will be managed under the Condominium Act
  • Control over the use and maintenance of the common parts and the observance of the internal order in the building will be decided at the General Assembly of the owners.
  • The investor organizes the convening of a General Meeting of the Owners for election of management and control bodies
  • Subscription based maintenance and maintenance of the elevators
  • Maintenance of common areas
  • Maintenance of green areas
  • Sewerage from PVC pipes with heat and noise insulation
  • Drainage of roofs and terraces with seamless gutters and downspouts
  • Outlined above-ground parking lots
  • Access control
  • Barbecue
  • Gazebo
  • Access for people with disabilities provided
  • Protective stair railings - by design project
  • Landscaping with lawns and ornamental plants
  • Wienerberger bricks
  • Thermal insulation of external walls
  • Walls of fine plaster (prepared for painting or wallpapering) and cement screed
  • Balconies / terraces with applied hydro and steam insulation and installed high quality frost resistant granite
  • Common areas with granite / granite flooring, glass and wrought iron railings, walls and ceilings - latex
  • The floors of the terraces and loggias are finished with granite tiles
  • Plumbing from polypropylene pipes to the plug, sewerage with sound-absorbing PVC pipes
  • Mounted exterior armored doors
  • €5000 reservation deposit
  • 30% upon signing the preliminary contract and deducting the reservation deposit
  • 20% when the building permit is issued
  • 30% when Act 14 is signed
  • 10% when Act 15 is signed
  • 10% when Act 16 is signed

Detailed information about the offered properties:

Floor: 2 Floor plan
Apartment 3, 3 BRS APARTMENT, 152.66 m2, (Built-up area 135.00 m2), € 210 670 (€ 1 380/sq.m) AVAILABLE
Apartment 4, 2 BRS APARTMENT, 116.47 m2, (Built-up area 103.00 m2), € 160 728 (€ 1 380/sq.m) AVAILABLE
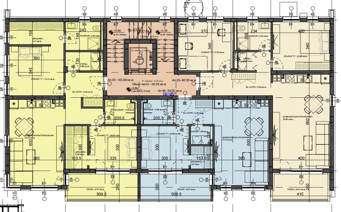
Floor: 3 Floor plan
Apartment 5, 2 BRS APARTMENT, 102.69 m2, (Built-up area 90.50 m2), € 154 035 (€ 1 500/sq.m) AVAILABLE
Apartment 6, 1 BR APARTMENT, 72.62 m2, (Built-up area 64.00 m2), € 108 930 (€ 1 500/sq.m) AVAILABLE
Apartment 7, 2 BRS APARTMENT, 116.88 m2, (Built-up area 103.00 m2), € 175 320 (€ 1 500/sq.m) AVAILABLE
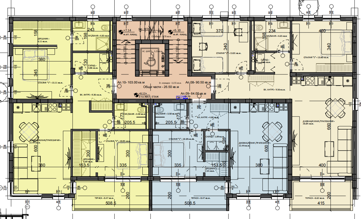
Floor: 4 Floor plan
Apartment 8, 2 BRS APARTMENT, 102.69 m2, (Built-up area 90.50 m2), € 162 250 (€ 1 580/sq.m) AVAILABLE
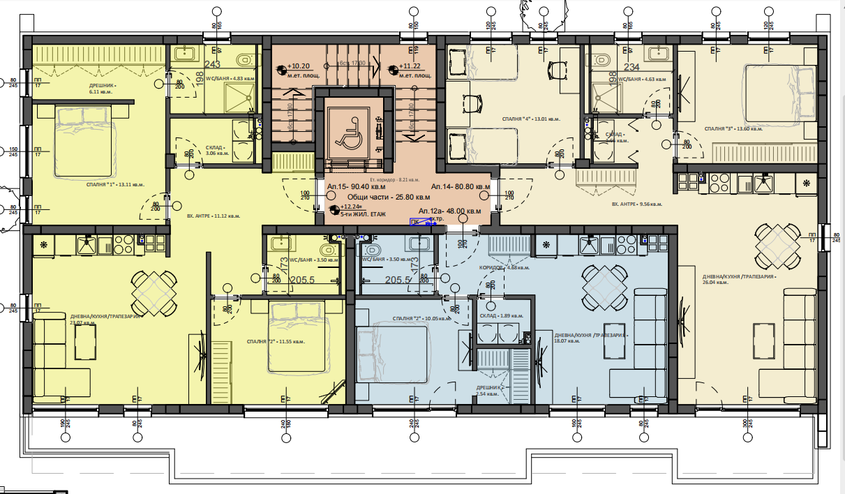
Floor: 6 Floor plan
Apartment 14, 2 BRS APARTMENT, 102.69 m2, (Built-up area 80.80 m2), € 205 380 (€ 2 000/sq.m) AVAILABLE
Apartment 15, 2 BRS APARTMENT, 116.66 m2, (Built-up area 90.40 m2), € 233 320 (€ 2 000/sq.m) AVAILABLE
The list of submitted offers does not exhaust the full potential to buy a property in this building. There may be a property that has not yet been announced. Please contact the agent for contacts.

Please use the contact form to get in touch with the agent in case you are interested in additional information, pictures, floor plans and arranging a property viewing.

Here's what's important if you wish to purchase this property

1. A large part of the newly built apartments are being offered without commission for buyers. This is usually indicated in the presentation of the project itself. You should still ask your agent whether you own commission on specific properties.

2. The declared price of the property does not include the commission of MIRELA (whenever such is due) and the state costs of the transaction (local tax, notarial fees and the fee to the Registry Agency, which (tax and fees) are totaling about 3,5 - 4,0% of the total value of the property.
For advice on how to calculate transaction costs, you can contact a lawyer at Mirela Ltd.
on 02 9812345 from 09.00 to 18.00 on weekdays.

3. We can offer you a property with similar characteristics in one of our other projects.
You should also bear in mind that we do not always display on our website all free and current independent properties in the specific project.

4. You can get a free consultation on choosing the most suitable property for you by contacting our agent and arranging an appointment.

5. After choosing a particular property, you provide a guarantee of your intentions to buy it at a certain price and terms. If we do not negotiate the same price and terms, we will refund your guarantee.

6. Here you can see the practical advice of the NRA on renting, buying and selling real estate.

We work openly and responsibly, with clear rules, to offer you accurate service.
All your questions can be addressed to the agent responsible for the offering and sale of this property.

We will be happy to have you as our client!

Real Estate Agent
Phone: 0883940744
CONTACT THE SALES AGENT

Please, specify your requirements and we will send you the suitable offers.

What type of property are you looking for?
Price?
I am interested in:
My main requirements are:
Name and surname:
Phone number:
Email:
* Marked location on the map may not be exactly.