Map
Scratchpad ()
Offer No. 455900
NO COMMISSION
10/5/25, 6:33 PM 641

Apartments for sale, Ivelin Dimitrov St., Manastirski livadi, city of Sofia,
prices from € 202 150

Map

Location:   Ivelin Dimitrov St.

VAT:  price VAT included

Construction type: reinforced concrete structure

Stage of construction: construction of the basement level

Completion date: 12.2027

Heating: air conditioner

Joinery: PVC

Plot area: 3722 sq.m

Building area: 7818 sq.m

Buildings: 1

Sections: 4

Apartments: 58

Garages: 58

  • It is delivered on plaster and putty

ЦЕНИ НА ИНВЕСТИТОР! БЕЗ КОМИСИОНА ЗА КУПУВАЧА!

Предлагаме ви нова сграда, част от уникален по рода си затворен комплекс от 3 жилищни сгради, обградени от линеен парк, в кв. Манастирски ливади- изток. Локацията на комплекса предоставя множество удобства, като транспортни връзки, чрез бързия си достъп до основни булеварди. В района са на разположение детски градини, училища, хипермаркети, банки, мол "България", медицински центрове, спортни центрове и други.

Сградата ще бъде изпълнена с висококачествени материали от най-висок клас и модерен и удобен, красив и функционален дизайн; окачена вентилируема фасада, дограма Schuco с троен стъклопакет, асансьори OTIS, шумоизолация, дизайнерски общи части със скрито осветление и стенни облицовки, предблокова градина с професионален ландшафтен проект, граничеща с бъдещия парк и речното корито, удобна и зелена, тиха и ориентирна на юг.

Апартаменти:
Сградата разполага с двустайни, тристайни и четиристайни апартаменти за продажба. Предават се в степен на завършеност по БДС, на шпакловка и замазка.
Имотите са подходящи, както за живеене, така и за инвестиция.

Характеристики на сградата:
• Сградата е с окачена фасада, с вентилируема топлоизолация 10 см;
• Парапетите са стъклени, за да влиза максимално светлина в апартаментите;
• Дограмата е висок клас, с троен стъклопакет, 4K стъкло с шумо и топлоизолация;
• Луксозни общи части, гранит и облицовка с MDF;
• Луксозен асансьор;
• Отопление: газ (изводи за радиатори) и климатици (изводи за климатици);
• Гаражите в сутерена са с врати и дистанционно.

Гаражи и паркоместа:
Сградата разполага с подземен паркинг. Има опция за закупуване на гараж.
• Гараж - 36 000 евро с ДДДС
• Паркомясто - 30 000 евро с ДДС

Такса поддръжка: ще се реши на общо събрание на всички собственици.

За повече информация, не се колебайте да се свържете с водещия консултант-продажби.

See more
  • Luxury residential complex
  • The building will be managed under the Condominium Act
  • Control over the use and maintenance of the common parts and the observance of the internal order in the building will be decided at the General Assembly of the owners.
  • The investor organizes the convening of a General Meeting of the Owners for election of management and control bodies
  • Plumbing from polypropylene pipes
  • Wiring for kitchen aspiration, individual for each apartment
  • Water meter with remote reading
  • Internet and TV in each living room
  • Video intercom system with video control
  • Terminals for installation of air conditioners
  • Separate underground garages
  • Outlined underground parking lots
  • Approach to the underground garages through a ramp
  • Under the above-ground garages - polished concrete
  • Walls and ceilings underground parking - open concrete
  • Elevator for the building with access from the underground parking
  • Security room
  • Barrier approach
  • Access control
  • Fence by design
  • Access for people with disabilities provided
  • Lobby flooring, corridors and staircase according to a design project
  • Protective stair railings - by design project
  • Landscaping with lawns and ornamental plants
  • Reinforced concrete beamless construction
  • Facade with high resistance to weathering and high level of energy efficiency, heat and moisture insulation, fire resistance and durability
  • Walls - gypsum plaster, floors - cement screed
  • Balconies / terraces with applied hydro and steam insulation and installed high quality frost resistant granite
  • Electric installation with installed switches, sockets and apartment panel
  • Plumbing installations on a project, brought to the necessary points "on the stopper"
  • Mounted exterior armored doors
  • 30% upon signing the preliminary contract and deducting the reservation deposit

Detailed information about the offered properties:

Building: 1
Entrance: A
Floor: 1 Floor plan
Apartment 1, 2 BRS APARTMENT, Entrance A, 83.21 m2, (Built-up area 71.30 m2), € 381 576 (€ 4 586/sq.m) AVAILABLE
Apartment 2, 1 BR APARTMENT, Entrance A, 79.69 m2, (Built-up area 68.10 m2), € 364 364 (€ 4 572/sq.m) AVAILABLE
Floor: 2 Floor plan
Apartment 6, 1 BR APARTMENT, Entrance A, 80.62 m2, (Built-up area 67.50 m2), € 209 612 (€ 2 600/sq.m) AVAILABLE
Floor: 3 Floor plan
Apartment 11, 2 BRS APARTMENT, Entrance A, 116.07 m2, (Built-up area 98.00 m2), € 301 782 (€ 2 600/sq.m) AVAILABLE
Floor: 4 Floor plan
Apartment 12, 2 BRS APARTMENT, Entrance A, 164.41 m2, (Built-up area 137.80 m2), € 427 466 (€ 2 600/sq.m) AVAILABLE
Floor: 5 Floor plan
Apartment 16, 1 BR APARTMENT, Entrance A, 93.96 m2, (Built-up area 79.90 m2), € 244 296 (€ 2 600/sq.m) AVAILABLE
Entrance: Б
Floor: 2 Floor plan
Apartment 20, 1 BR APARTMENT, Entrance Б, 78.71 m2, (Built-up area 65.90 m2), € 204 646 (€ 2 600/sq.m) AVAILABLE
Floor: 3 Floor plan
Apartment 25, 2 BRS APARTMENT, Entrance Б, 115.37 m2, (Built-up area 97.10 m2), € 299 962 (€ 2 600/sq.m) AVAILABLE
Apartment 26, 1 BR APARTMENT, Entrance Б, 77.87 m2, (Built-up area 65.20 m2), € 202 462 (€ 2 600/sq.m) AVAILABLE
Entrance: В
Floor: 3 Floor plan
Apartment 35, 2 BRS APARTMENT, Entrance В, 117.15 m2, (Built-up area 98.60 m2), € 304 590 (€ 2 600/sq.m) AVAILABLE
Floor: 4 Floor plan
Apartment 39, 1 BR APARTMENT, Entrance В, 77.75 m2, (Built-up area 65.10 m2), € 202 150 (€ 2 600/sq.m) AVAILABLE
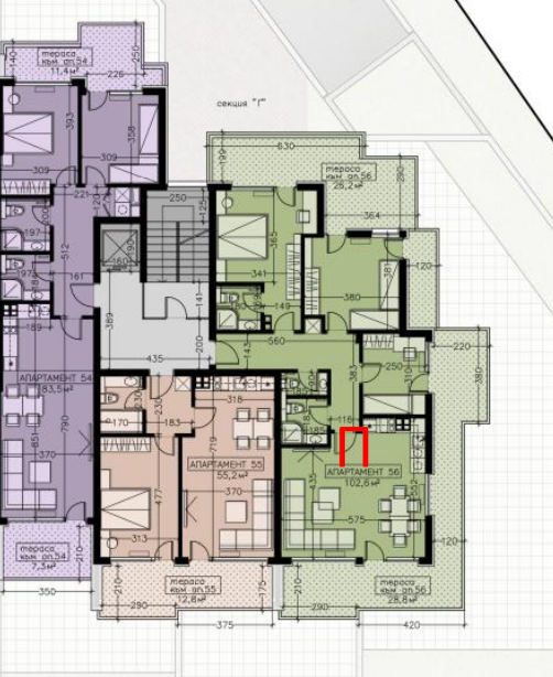
Entrance: Г
Floor: 4 Floor plan
Apartment 56, 3 BRS APARTMENT, Entrance Г, 186.66 m2, (Built-up area 157.60 m2), € 485 316 (€ 2 600/sq.m) AVAILABLE
The list of submitted offers does not exhaust the full potential to buy a property in this building. There may be a property that has not yet been announced. Please contact the agent for contacts.

Please use the contact form to get in touch with the agent in case you are interested in additional information, pictures, floor plans and arranging a property viewing.

Here's what's important if you wish to purchase this property

1. A large part of the newly built apartments are being offered without commission for buyers. This is usually indicated in the presentation of the project itself. You should still ask your agent whether you own commission on specific properties.

2. The declared price of the property does not include the commission of MIRELA (whenever such is due) and the state costs of the transaction (local tax, notarial fees and the fee to the Registry Agency, which (tax and fees) are totaling about 3,5 - 4,0% of the total value of the property.
For advice on how to calculate transaction costs, you can contact a lawyer at Mirela Ltd.
on 02 9812345 from 09.00 to 18.00 on weekdays.

3. We can offer you a property with similar characteristics in one of our other projects.
You should also bear in mind that we do not always display on our website all free and current independent properties in the specific project.

4. You can get a free consultation on choosing the most suitable property for you by contacting our agent and arranging an appointment.

5. After choosing a particular property, you provide a guarantee of your intentions to buy it at a certain price and terms. If we do not negotiate the same price and terms, we will refund your guarantee.

6. Here you can see the practical advice of the NRA on renting, buying and selling real estate.

We work openly and responsibly, with clear rules, to offer you accurate service.
All your questions can be addressed to the agent responsible for the offering and sale of this property.

We will be happy to have you as our client!

CONTACT THE SALES AGENT

Please, specify your requirements and we will send you the suitable offers.

What type of property are you looking for?
Price?
I am interested in:
My main requirements are:
Name and surname:
Phone number:
Email:
* Marked location on the map may not be exactly.