Map
Scratchpad ()
Offer No. 426627
NO COMMISSION
10/16/25, 7:01 PM 2230

2-bedroom apartment, Georgi Rusev St, Malinova dolina, city of Sofia, 98.65 sq.m,
€ 227 300
(

£ 2 038 / $ 2 684 / € 2 304 sq. m

)

Map

Location:   Georgi Rusev St

VAT:  price VAT included

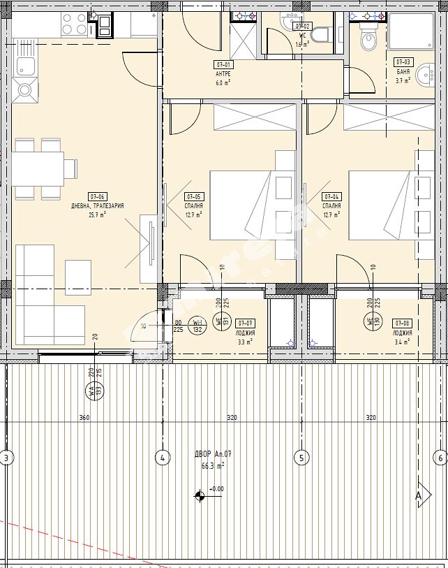
Apartment: 7

Total size:  98.65 sq.m

Built-up area::  82.25 sq.m

Yard area:  66.3 sq.m

Floor: 1 (ground floor)

Floors: 4

Bedrooms: 2

Bathrooms: 1

Construction type: brick

Stage of construction:  construction completed including all installation

Completion date: 12.2025

Exposure: east, south

Joinery: Six-chamber PVC

Heating: air conditioner

Characteristics: 
  • There are 2 balconies / terraces
  • It is delivered on plaster and putty
  • Non-transition

Цени от инвеститор! Без комисиона от купувача!

Представяме Ви един от най-новите комплекси от затворен тип в кв. Малинова долина. Сградите са с модерна визия, минималистичен дизайн и панорамна гледка към Витоша.

Апартаментът, който Ви представяме с тази оферта, се намира на партерното ниво и има следното разпределение: коридор, дневна с кухненски бокс, две достатъчно големи спални, баня с тоалетна, отделна тоалетна и двор към апартамента с площ 66.30 кв. м.

Местоположение

Комплексът се намира в новата част на кв. Малинова долина - район, който в последните години привлича внимание поради добрата свързаност с центъра на София, близостта на няколко университета, ресторанти, нощни заведения, парка на НСА и наличието на супермаркети от световни вериги.

Сградите

Комплексът е проектиран с шест жилищни сгради, като сграда 2 е на 4 жилищни етажа, с общо 39 апартамента и външни паркоместа.

За комфорта на живущите, прилежащите зелени площи са оформени във вътрешен парк с преходни алеи, зони за отдих и перфектно построени флорални кътове.

Паркиране

На разположение на живущите има външни и подземни паркоместа на цени от 12000 евро.

Обявените цени са с вкл. ДДС.

За повече информация относно проекта, оглед на място или среща с инвеститора, не се колебайте да се свържете с консултанта по продажби.

See more
See the project

WHAT IS IMPORTANT TO KNOW IF YOU WANT TO PURCHASE THAT PROPERTY

1. The listed price does not include the commission remuneration of Mirela and the state costs for the transaction (local tax, notary fee and taxes to Registry Agency, which ( tax and fees) amount to about 3% of property value.

2. Our usual remuneration, which you owe when you purchase property is 3 % (excluding VAT) of the property sale price, not less than EUR 2,000 (excluding VAT). This commission does not apply to holiday homes and rural properties. For some properties the commission is subject to explicit agreement. We advise you to ask your agent in advance for the particular property you are interested in.

For consultation on calculating transaction costs, you can contact a lawyer of Mirela LTD at +359 883 940 027 from 09:00 to 18:00 on work days.

3. In order to organize a property viewing you should conclude an Assignation order with Mirela. You can submit that order and online.

4. There is a possibility this property to be with No commission for the buyer or to have other preferential conditions for payment of the remuneration - ask the agent of the offer.

5. Under the conditions of the concluded Assignation order you are entitled of additional discounts.

6. The remuneration shall be paid within 5 days after the implementation of the transaction. This payment can be in the means of bank transfer to Mirela's bank account.

7. You owe a remuneration only if you purchase that property - you do not owe anything in advance.

8. You can give a guarantee of your intention to purchase the property and to place in advance the conditions under which You will make a deal. If we do not manage to negotiate the same conditions, we will refund the guarantee.

9. The negotiations on the deal are made, through the mediation of Mirela. The draw up of documents for the transaction is carried out by Mirela, unless you are willing to use your own solicitors.

10. You can sign a preliminary contract for purchase- sale of the property, leaving the seller a DOWN PAYMENT or go directly to signing the final contract (notary deed) - we will offer You options and our opinion on this issue, but the decision is yours and we comply with it.

11. If after a concluded with our mediation purchase-sale contract, a final contract for purchase sale is not concluded through the Seller's fault, MIRELA obliges to search another property, as You do not owe an additional remuneration for following implemented deal.

12. To avoid misunderstandings, you will be notified by e-mail and SMS through all stages of the transaction.

13. You have a guaranteed possibility to share your impressions of the service and to level criticism or recommendation directly to the management of Mirela.14. For deals worth over 10 000 BGN, it's obligatory the provision of guarantee and payment of amounts of the sale price of the property to be made in the means of bank transfer.

We work in an open, accountable way, with clear rules.

Do not hesitate to send all your questions to the agent who is in charge with the offering of the property.

We will be glad to have You as our client!

Price change notification
In case of price change of the property You will receive a message to Your email:
I offer another price
I would buy this property at the price of:
Phone: 0883941530
Tell me more about this property: 
Location
Similar properties
Last sold in the area
* Marked location on the map may not be exactly.
Last sold in the area
SOLD
6

 

2-bedroom apartment city of Sofia, Malinova dolina
129.97 sq. m € 246 643
SOLD
7

 

2-bedroom apartment city of Sofia, Vitosha
95.18 sq. m € 210 000
SOLD
11

 

2-bedroom apartment city of Sofia, Malinova dolina, Georgi Rusev St
160 sq. m € 168 000
SOLD
2

 

2-bedroom apartment city of Sofia, Malinova dolina
128.68 sq. m € 2 000 /sq. m
SOLD
2

 

2-bedroom apartment city of Sofia, Malinova dolina, Georgi Rusev St
98.65 sq. m € 207 570
SOLD
5

 

2-bedroom apartment city of Sofia, Malinova dolina
171.71 sq. m € 256 500
SOLD
4

 

2-bedroom apartment city of Sofia, Malinova dolina, Simeonovsko shose Blvd
153.56 sq. m € 271 623
SOLD
6

 

2-bedroom apartment city of Sofia, Malinova dolina, Prof. Krikor Azaryan St
121.75 sq. m € 211 850
SOLD
5

 

2-bedroom apartment city of Sofia, Malinova dolina, Prof. Krikor Azaryan St
89 sq. m € 174 150