Карта
Бележник ()
Оферта № 455181
БЕЗ КОМИСИОНА
петък, 14:59 523

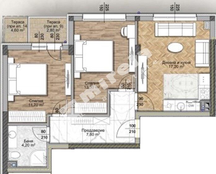
Тристаен апартамент, ж.к. Овча купел 1, град София, 88.26 кв. м,
€ 186 902
(

€ 2 118 на кв. м

)

Карта

Локация:  в близост до 21 ДКЦ

ДДС:  цена с ДДС

Апартамент: А.14

Сграда: А

Площ:  88.26 кв. м

Застроена площ:  70.38 кв. м

Етаж: 3-ти (2-ри етаж над партер)

Брой етажи: 4

Спални: 2

Бани: 1

Вид строителство: тухла

Етап на строителство:  кота 4-ти етаж

Пусков срок: 04.2027

Изложение: северозапад

Дограма: PVC

Отопление: Газ - централно

Акценти: 
  • Има 1 балкон/тераса
  • Предава се на шпакловка и замазка
  • Непреходен

Мирела представя на вашето внимание НА ЦЕНИ НА ИНВЕСТИТОР две нови сгради в кв. Овча Купел от строително-инвестиционната компания е с богато портфолио и дългогодишен професионален опит.

Сградите са с модерна архитектура, има голям избор от апартаменти с по-големи квадратури на помещенията от стандартите за сегмент ново строителство.

Предложеният с тази оферта тристаен апартамент се състои от антре, всекидневна с трапезария и кухненски бокс, две спални, баня с тоалетна и тераса.

Акценти:

  • Сградите се намират в близост до метростанция Мизия/НБУ и спирки на градския транспорт.
  • Сграда А е с 4 надземни нива, а сграда Б е с 8 надземни нива, разделени с озеленени площи.
  • 54 апартамента - двустайни и тристайни и 7 броя ателиета, всички с максимално естествена светлина.
  • Апартаментите се характеризират с функционални разпределения, щедри квадратури, достатъчно бани и мокри помещения и към всеки от тях има складово помещение.
  • Паркирането е решено чрез единични и двойни гаражи и единични и двойни паркоместа на 2 подземни нива и ниво терен.

За повече информация, не се колебайте да се свържете с водещия консултант-продажби.

Прочети още
ВИЖТЕ ПРОЕКТА

_________________________________________________________________________________________________

Към потенциалните продавачи!
Ако продавате подобен имот
или обмисляте дали да го направите в близко бъдеще, моля свържете се с мен. Имам клиенти, които търсят в района. Мога да дам ориентировъчна цена по телефон или имейл и по-точна цена при оглед на място.

Огледът и консултацията са безплатни.

Можете също така, да подадете и безплатна Частна обява за продажба на Вашия имот в mirela.bg, без брокер и комисиона.

Ето какво е важно да знаете, ако искате да купите този имот с МИРЕЛА

1. МИРЕЛА работи според изискванията на БДС EN 15733 относно предоставяне на услуги от брокери на недвижими имоти.

2. В обявената цена на имота не са включени комисионното възнаграждение на МИРЕЛА и държавните разходи по сделката (местен данък, нотариални такси и такса към Агенцията по вписванията, които (данък и такси), възлизат общо на около 3% от стойността на имота.

За консултация във връзка с изчисляване на разходите по сделката, можете да се свържете с юрист на Мирела ЕООД на тел. 0883 940 027 с 09.00 по 18.00 ч в делнични дни.

3. Обичайното комисионно възнаграждение, което дължите при покупка на градски имот е 3% (без ДДС) от продажната му цена, не по-малко от 2000 евро, (без ДДС). Тази комисиона не се отнася за ваканционни и селски имоти. За някои имоти комисионата подлежи на изрично договаряне. Съветваме ви предварително да попитайте Вашия агент каква е дължимата комисионата за конкретния имот, който ви интересува.

4. В цената на посредническата услуга се включва:

  • ПРАВНА ЗАЩИТА и пълно юридическо обслужване;
  • Предаване на владението на закупения имот;
  • Регистрацията на имота в данъчната служба, чрез подаване на декларация по чл. 14 от ЗМДТ (опция);
  • Откриване на нови партиди за ток, вода и отопление (ТЕЦ, ГАЗ) (опция);
  • Представяне на новия собственик пред съседите и управителя на Етажната собственост;
  • Сключване на договор за цифрова TV и интернет (опция).

5. За организиране на оглед на имота трябва да направите заявка за оглед към МИРЕЛА.

6. ВАЖНО!!! Възможно е сделката с този имот да е освободена от комисиона за купувача или да има други условия по заплащането на комисиона - попитайте за това агента по офертата.

7. Вие имате право на допълнителни отстъпки, при условията на сключения договор за посредничество с МИРЕЛА.

8. 50% от възнаграждението се заплаща до 5 дни след сключването на предварителен договор за покупко-продажба на имота, а останалите 50% - след окончателното финализиране на сделката (не важи за ново строителство). Плащането се извършва по банкова сметка на МИРEЛА.

9. Вие дължите комисионно възнаграждение, само ако купите имота - не дължите нищо предварително.

10. Можете да предоставите гаранция за намеренията си да закупите този имот и предварително да поставите условията, при които ще осъществите сделка. Ако не договорим същите условия, ние ще Ви върнем гаранцията.

11. Преговорите по сделката се осъществяват, чрез посредничеството на МИРЕЛА. Документалното оформяне на сделката се извършва от МИРЕЛА, освен ако Вие не изразите желание да ползвате свои юристи.

12. Можете да сключите предварителен договор за покупко-продажба на имота, като оставите КАПАРО на продавача или да преминете директно към сключването на окончателен договор (нотариален акт)- ние ще Ви предложим възможните варианти и нашето виждане по този въпрос, но решението го взимате Вие и ние се съобразяваме с него.

13. Ако след сключен с нашето посредничеството предварителен договор, по вина на продавача не се сключи окончателен договор за покупко- продажба на имота, МИРЕЛА се задължава да Ви предложи друг подходящ имот, без Вие да дължите допълнително възнаграждение за следващата осъществена сделка.

14. За да избегнем недоразумения, ще бъдете уведомяван/а по e-mail и чрез SMS за всички етапи от сделката.

15. Имате гарантирана възможност да споделите Вашите впечатления от обслужването и да отправите критики и препоръки, директно до ръководството на МИРЕЛА.

16. При сделки на стойност над 10 000 лв., предоставянето на гаранция и заплащането на суми от продажната цена на имота става задължително по банков път.

17. Тук можете да видите практическите съвети на НАП при наемане, покупка и продажба на недвижими имоти.

Ние работим открито и отговорно, при ясни правила, за да Ви предложим прецизно обслужване.

Всички Ваши въпроси можете да отправите към агента, който отговаря за предлагането и продажбата на този имот.

Ще се радваме да бъдете наш клиент!

Известявай ме за цената
При промяна в цената на имота ще получите съобщение на посочен от Вас email:
Предлагам друга цена
Консултант продажби ново строителство
Тел.: 0883940776
Напишете отзив
Попитайте ме за този имот: 
Локация
Подобни имоти
Наскоро продадени в района
* Отбелязаното местоположение може да не е съвсем точно.
Наскоро продадени в района
ПРОДАДЕН
5

 

Тристаен апартамент град София, кв. Овча купел
98.29 кв. м € 2 000 /кв. м
ПРОДАДЕН
5

 

Тристаен апартамент град София, ж.к. Овча купел 1, ул. Монтевидео
103.85 кв. м € 148 000
ПРОДАДЕН
5

 

Тристаен апартамент град София, ж.к. Овча купел 1
101.11 кв. м € 171 900
ПРОДАДЕН
2

 

Тристаен апартамент град София, ж.к. Овча купел 1
135.58 кв. м € 230 486
ПРОДАДЕН
7

 

Тристаен апартамент град София, ж.к. Овча купел 2, бул. Президент Линкълн
95.46 кв. м
ПРОДАДЕН
5

 

Тристаен апартамент град София, ж.к. Овча купел 2
108.10 кв. м
ПРОДАДЕН
2

 

Тристаен апартамент град София, ж.к. Овча купел 1, ул. Лиляче
110.17 кв. м € 199 967
ПРОДАДЕН
2

 

Тристаен апартамент град София, ж.к. Овча купел 1
104.40 кв. м € 211 103
ПРОДАДЕН
2

 

Тристаен апартамент град София, ж.к. Овча купел 2, ул. Франкофония
112.95 кв. м € 1 600 /кв. м